Munkáink /

Lakóépületek


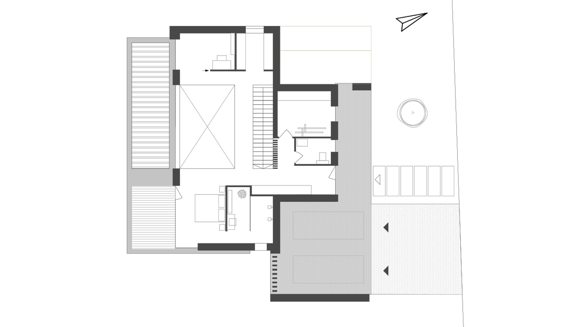
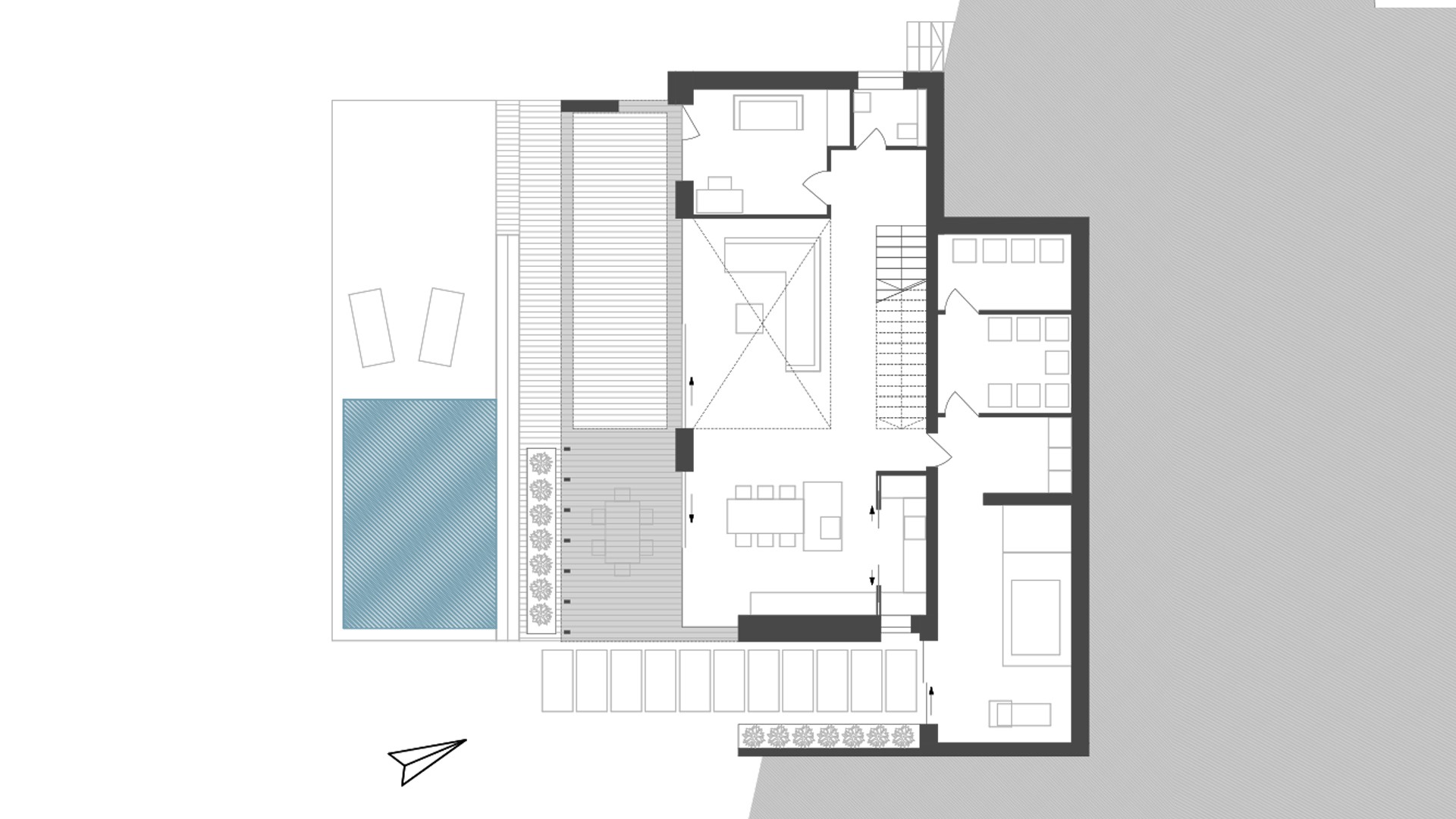
Pilisborosjeno Kulso 04
Tervezők
Csabai Márton és Prekup Dávid

Építész munkatárs
Dénes Filip

Tervezés éve
2026

Terület
207 m²

Helyszín
Pilisborosjenő


Flow Home

Pilisborosjeno Kulso 04 Pilisborosjeno Kulso 04 Pilisborosjeno Kulso 04 Pilisborosjeno Kulso 04 Pilisborosjeno Kulso 04 Pilisborosjeno Kulso 04 Pilisborosjeno Kulso 04 Pilisborosjeno Kulso 04 Pilisborosjeno Kulso 04 Pilisborosjeno Kulso 04 Pilisborosjeno Kulso 04 Pilisborosjeno Kulso 04 Pilisborosjeno Kulso 04 Pilisborosjeno Kulso 04 Pilisborosjeno Kulso 04 Pilisborosjeno Kulso 04 Pilisborosjeno Kulso 04 Pilisborosjeno Kulso 04 Pilisborosjeno Kulso 04 Pilisborosjeno Kulso 04 Pilisborosjeno Kulso 04
További munkáink
Online Mer3259 Copy

Preton Architecture

Iroda
1054 Budapest, Alkotmány u. 4.
Tel
+36 (20) 353 6706
E-mail
info@preton.hu
Üzenet küldése
PRETON Building Kft.
2615 Csővár, Honvéd út 4.
26700951-2-13

© Minden jog fenntartva!

Adatkezelési tájékoztató

designed and created by
Circumstances Creative Co.